Strumenti di Conversione Avanzata: Valorizza ogni dettaglio per accelerare la tua vendita.
DIGITAL STAGING
Trasforma ambienti vuoti o datati in spazi pronti da abitare, aumentando immediatamente il valore percepito dell’immobile senza costi di arredamento fisico.
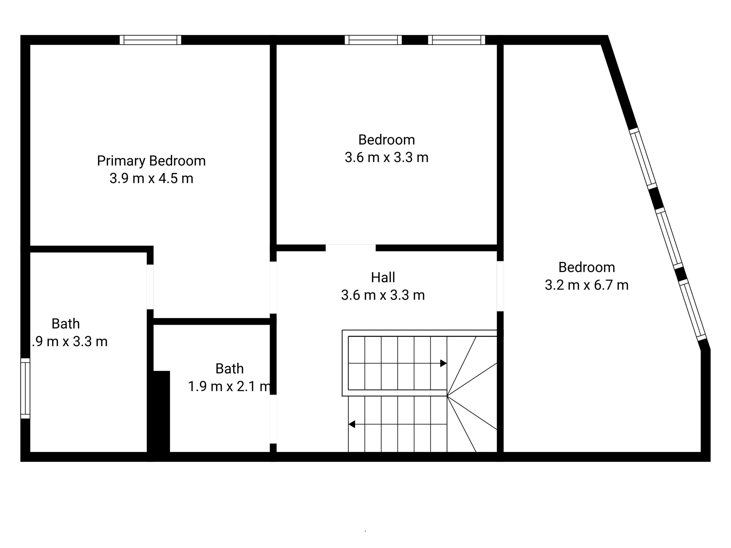
FLOORPLAN 2D
Lo standard essenziale per fornire ai potenziali acquirenti misure precise e una visione tecnica immediata della proprietà.

CAD FILES
Fornisce la base tecnica indispensabile (.dwg, .obj, .fbx) per i professionisti che devono pianificare interventi di ristrutturazione.
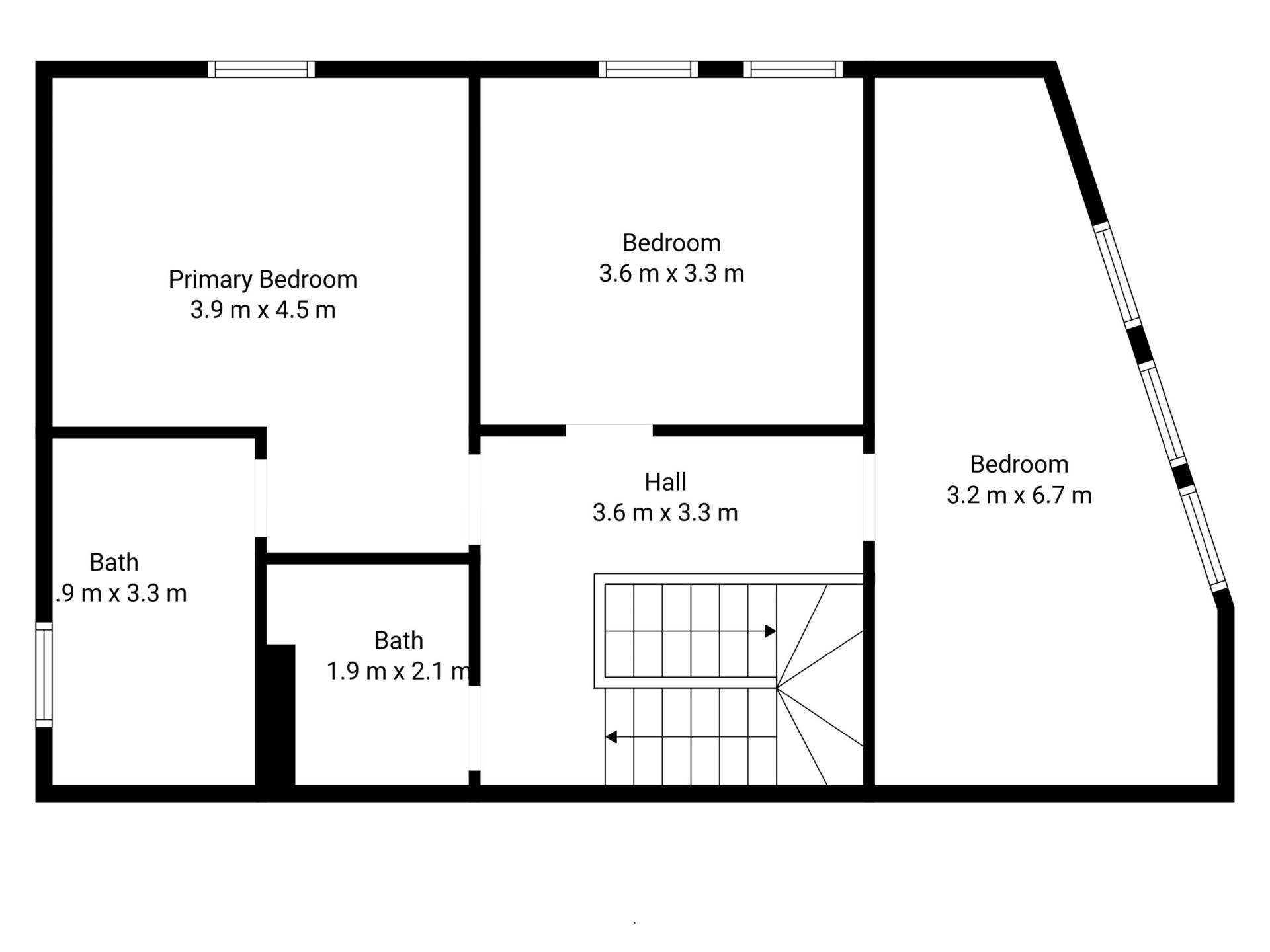
FLOORPLAN 3D
Offre una visione spaziale chiara e intuitiva delle superfici fino a 250 m², facilitando la comprensione della distribuzione degli ambienti.
VERTICAL VISUALS
Ottimizza la tua visibilità sui social media con clip video verticali da un minuto, studiate per catturare l’attenzione del pubblico moderno.


